現在カート内に商品はございません。
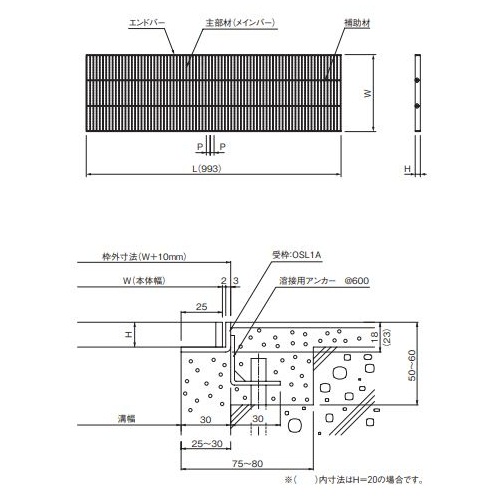
[溝幅]50mm[サイズ]W100×L993×H15mm [適用荷重]T-14 [材質]SUS304(電解研磨仕上げ) 購入に関する注意事項 特長 ・主部材(メインバー)の厚みが3mmのエコノミータイプです。4mmタイプと比べて、軽量で、コストパフォーマンスに優れています。 ・主部材(メインバー)上部に滑り止め加工付き部材(凸凹タイプ)を使用しています。 ご注意 ・桝用やU字溝用、4mmタイプもご用意しています。 ・規格寸法外の製作も承ります。 ・運搬諸経費は別途お問合せください。 ・納期:ご確認ください。
※在庫状況等により、稀に商品をご用意できない場合もございます。 その際は、やむをえずご注文をキャンセルとさせていただくことがございますので予めご了承ください。
奥岡 エコノミータイプSUSグレーチング OSG3-NS 15-05 G P=11
¥25,740 (税込)
ミニグレビティーヒンジ 90゜ストップ ステンレス製
¥4,510 (税込)
ACEグレビティヒンジ
¥5,720 (税込)
CLOVER(クローバー) つまみ ノブ メタルノブ サークル シルバー
¥440 (税込)
CLOVER(クローバー) つまみ ノブ ガラスノブ ウェイビー
¥550 (税込)
CLOVER(クローバー) つまみ ノブ ウッドレザータッセルノブ
¥715 (税込)
CLOVER(クローバー) つまみ ノブ ガラスノブ アンティークフラワー
CLOVER(クローバー) つまみ ノブ マーブルノブ ホワイト
¥605 (税込)
CLOVER(クローバー) つまみ ノブ マーブルノブ ブルーブラック
CLOVER(クローバー) つまみ ノブ メタルノブ スター
¥385 (税込)
CLOVER(クローバー) つまみ ノブ メタルノブ アンカー