現在カート内に商品はございません。
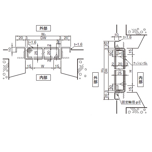
ワンタッチ平面ハンドル付(鍵付)です。 [サイズ]H600×W600mm [外寸法]H2:670×W2:670mm [本体重量]7.3kg [材質]溶融亜鉛メッキ鋼板 [仕上]サッシプライマー [吊元]右 購入に関する注意事項 特長 ・枠込み25mmタイプです。 ・ワンタッチ平面ハンドル付(鍵付)です。 ご注意 ・左吊元使用の場合は点検口を上下逆にし、次に平面ハンドルをはずして反対に取り付けます。 ・ワンタッチ平面ハンドルMKS-05K 小鍵のみ(451-255)もお求めになれます。 ・扉取外し可能タイプ(脱着タイプ)も別注にて製作可能です。詳細はお問い合わせください。 ・壁点検口以外の使用は避けてください。(ストッパーや補強は付いておりません) ・もし雨掛りに設置する場合は、庇等を設けてください。
※在庫状況等により、稀に商品をご用意できない場合もございます。 その際は、やむをえずご注文をキャンセルとさせていただくことがございますので予めご了承ください。
メーター点検口 600角
¥30,800 (税込)
ミニグレビティーヒンジ 90゜ストップ ステンレス製
¥4,510 (税込)
ACEグレビティヒンジ
¥5,720 (税込)
CLOVER(クローバー) つまみ ノブ メタルノブ サークル シルバー
¥440 (税込)
CLOVER(クローバー) つまみ ノブ ガラスノブ ウェイビー
¥550 (税込)
CLOVER(クローバー) つまみ ノブ ウッドレザータッセルノブ
¥715 (税込)
CLOVER(クローバー) つまみ ノブ ガラスノブ アンティークフラワー
CLOVER(クローバー) つまみ ノブ マーブルノブ ホワイト
¥605 (税込)
CLOVER(クローバー) つまみ ノブ マーブルノブ ブルーブラック
CLOVER(クローバー) つまみ ノブ メタルノブ スター
¥385 (税込)
CLOVER(クローバー) つまみ ノブ メタルノブ アンカー