現在カート内に商品はございません。
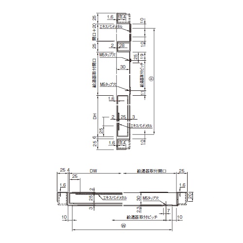
[サイズ]H1900mm、W600mmまで[重量]20kg [材質]溶融亜鉛メッキ鋼板 [仕上げ]サッシプライマー [吊り元]右、左 購入に関する注意事項 ・納期:受注生産となります。 ・打合せ、発注のための必要事項は下記の通りです。 ・現場名 ・給湯器のメーカー名、機種名 ・吊元、数量 右吊元____枚、左吊元____枚 ・金物の指示がない場合は、下記制定品になります。 3インチ面付丁番 451-251 ワンタッチ平面ハンドルMKS-05 鍵無 ご注意 ・W寸法は、給湯器のメーカー機種により異なります。
※在庫状況等により、稀に商品をご用意できない場合もございます。 その際は、やむをえずご注文をキャンセルとさせていただくことがございますので予めご了承ください。
ガスチャンバー 扉外設置 1型 目板付
¥61,600 (税込)
ミニグレビティーヒンジ 90゜ストップ ステンレス製
¥4,510 (税込)
ACEグレビティヒンジ
¥5,720 (税込)
CLOVER(クローバー) つまみ ノブ メタルノブ サークル シルバー
¥440 (税込)
CLOVER(クローバー) つまみ ノブ ガラスノブ ウェイビー
¥550 (税込)
CLOVER(クローバー) つまみ ノブ ウッドレザータッセルノブ
¥715 (税込)
CLOVER(クローバー) つまみ ノブ ガラスノブ アンティークフラワー
CLOVER(クローバー) つまみ ノブ マーブルノブ ホワイト
¥605 (税込)
CLOVER(クローバー) つまみ ノブ マーブルノブ ブルーブラック
CLOVER(クローバー) つまみ ノブ メタルノブ スター
¥385 (税込)
CLOVER(クローバー) つまみ ノブ メタルノブ アンカー