現在カート内に商品はございません。
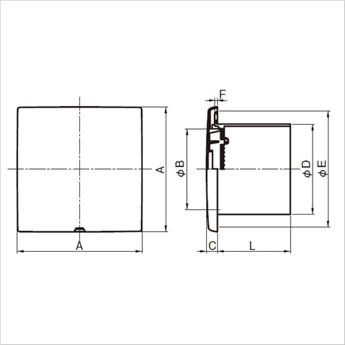
角型クーラーキャップは、キャップ部がマイナスドライバーなどで取り外しができます。配管カバーに対応できる構造です。 [色]クールホワイト [サイズ]A:137、B:89、C:12、D:99、E:128、F:3、L:80 [本体重量]145g [材質]ASA ●適用パイプ:SU100 100×106 購入に関する注意事項
※在庫状況等により、稀に商品をご用意できない場合もございます。 その際は、やむをえずご注文をキャンセルとさせていただくことがございますので予めご了承ください。
宅配ボックス KS-TLJ360-FH3
¥53,900 (税込)
飾りビス キャップタイプ(屋外対応) STB-5-2
¥583 (税込)
飾りビス キャップタイプ(屋外対応) STB-5-4
¥1,144 (税込)
マイスタンド 埋込式U-1(1世帯用) ブラック
¥36,740 (税込)
角型クーラーキャップ PC100CW
¥968 (税込)
ミニグレビティーヒンジ 90゜ストップ ステンレス製
¥4,510 (税込)
ACEグレビティヒンジ
¥5,720 (税込)
CLOVER(クローバー) つまみ ノブ メタルノブ サークル シルバー
¥440 (税込)
CLOVER(クローバー) つまみ ノブ ガラスノブ ウェイビー
¥550 (税込)
CLOVER(クローバー) つまみ ノブ ウッドレザータッセルノブ
¥715 (税込)
CLOVER(クローバー) つまみ ノブ ガラスノブ アンティークフラワー
CLOVER(クローバー) つまみ ノブ マーブルノブ ホワイト
¥605 (税込)
CLOVER(クローバー) つまみ ノブ マーブルノブ ブルーブラック
CLOVER(クローバー) つまみ ノブ メタルノブ スター
¥385 (税込)
CLOVER(クローバー) つまみ ノブ メタルノブ アンカー