現在カート内に商品はございません。
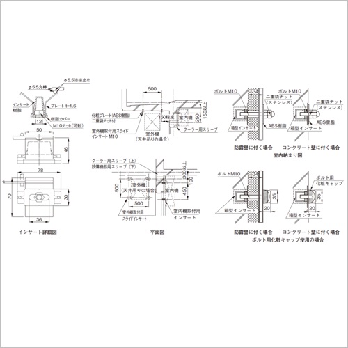
[サイズ]500mm×500mm[本体重量]1300g [材質]SUS304 購入に関する注意事項 ※代表を表示しています。 ご注意 ・機構(公団)住宅AE-505、公共住宅E-406該当品です。 ・都営住宅B-11-1該当品は、246-119です。 ・スラブ厚にご注意ください。 ・必要に応じて吹付保護キャップをご使用ください。 ルームクーラーインサート標準セット明細 ※内外1組では、外部用セット+内部用セットとなります。 <インサート4連外部用標準セット> インサート4連外部用 1本 全ネジボルト 4本 通しナット 4個 袋ナット 4個 角型化粧板(または丸型化粧板) 4枚 <インサート6連外部用標準セット> インサート6連外部用 1本 全ネジボルト 6本 通しナット 6個 袋ナット 6個 角型化粧板(または丸型化粧板) 6枚 <インサート2連内部用標準セット> インサート2連内部用 1本 全ネジボルト 2本 通しナット 2個 袋ナット 2個 角型化粧板(または丸型化粧板) 2枚 <インサート2連内部用セット(化粧キャップ使用の場合)> インサート2連内部用 1本 全ネジボルト 2本 化粧キャップ 2個
※在庫状況等により、稀に商品をご用意できない場合もございます。 その際は、やむをえずご注文をキャンセルとさせていただくことがございますので予めご了承ください。
ゴミストッカー開き戸式 基本セット GSAMF-MGA2020
¥389,400 (税込)
AC-97 安心クッション コーナー用 小 木目ダーク
¥363 (税込)
M10 クーラーインサート 外部用 500x500 丸棒5.5
¥2,090 (税込)
SUS M10 クーラーインサート 外部用 500x500 丸棒5.5
¥7,700 (税込)
ミニグレビティーヒンジ 90゜ストップ ステンレス製
¥4,510 (税込)
ACEグレビティヒンジ
¥5,720 (税込)
CLOVER(クローバー) つまみ ノブ メタルノブ サークル シルバー
¥440 (税込)
CLOVER(クローバー) つまみ ノブ ガラスノブ ウェイビー
¥550 (税込)
CLOVER(クローバー) つまみ ノブ ウッドレザータッセルノブ
¥715 (税込)
CLOVER(クローバー) つまみ ノブ ガラスノブ アンティークフラワー
CLOVER(クローバー) つまみ ノブ マーブルノブ ホワイト
¥605 (税込)
CLOVER(クローバー) つまみ ノブ マーブルノブ ブルーブラック
CLOVER(クローバー) つまみ ノブ メタルノブ スター
¥385 (税込)
CLOVER(クローバー) つまみ ノブ メタルノブ アンカー